IMMOBILI
VIMERCATE ZONA SAN MAURIZIO- 4 LOCALI E BOX DOPPIO

VIMERCATE ZONA SAN MAURIZIO- 4 LOCALI E BOX DOPPIO

Descrizione

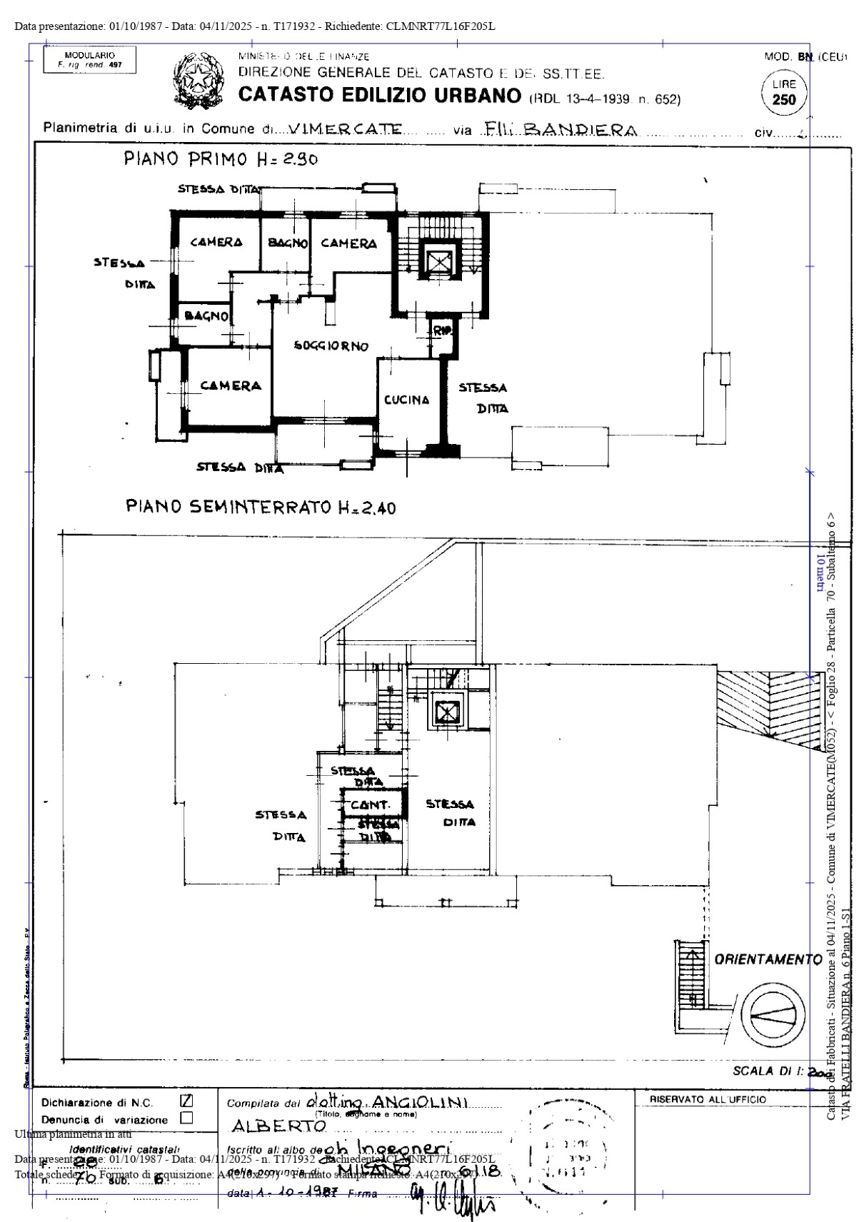
**Appartamento in Vendita: Vimercate zona San Maurizio 4 LOCALI** Scopri questo splendido appartamento di 4 locali, situato al secondo piano di una palazzina ben curata, dotata di ascensore. L'ingresso accogliente conduce a una cucina abitabile, con accesso a un terrazzino vivibile. Il soggiorno doppio, arricchito da un camino, offre un ambiente ideale per momenti di relax e convivialità, anch'esso con accesso al terrazzino. L'immobile ha anche un ripostiglio. La zona notte è ben distribuita e comprende una camera da letto con ampia armadiatura e un bagno privato con doccia tripla e accesso al balcone. Due camerette spaziose completano l'area notte, una delle quali si affaccia su un terzo balcone. Gli spazi sono luminosi e ben progettati, con pavimentazione in gres in cucina e parquet nel resto della casa, creando un'atmosfera calda e accogliente. Inoltre, l'appartamento è dotato di impianto d'allarme, videocitofono e predisposizione per aria condizionata nella zona notte. Un piccolo soppalco nella parte disimpegno aggiunge un tocco di spaziosità per la casa. Inclusi nel prezzo ci sono un box doppio in lunghezza e una cantina, offrendo ulteriore spazio per le tue esigenze. Questo immobile è situato in una zona tranquilla e comoda per scuole e servizi pubblici. Libero a 3 mesi dalla proposta, non perdere l'occasione di visitare questo appartamento ristrutturato. Contattaci per maggiori informazioni e per prenotare una visita!

PREZZO: € 398.000
Richiedi Informazioni
  • Via Giuseppe Sirtori, 4, 20900 Monza
  • 0392 264 917
  • ragocasa@gmail.com
Nazione
Italia
Prov./Distretto
MB
Comune
Vimercate
Cap
20871
Indirizzo
via Fratelli Bandiera 6
(Vai alla mappa📍)
TIPOLOGIA
Appartamento
MQ
133 m2
CAMERE
3
BAGNI
2
PIANO
2° di 3
CLASSE ENERGETICA
Non Indicata
TERRAZZE e BALCONI
3
Cantina
5m²
Superficie Terrazzi e Balconi
22 m²
Esposizione solare Nord, Ovest, Est
Consegna immobile Libero
Anno costruzione 1987
Spese condominiali 216.00 €
Riscaldamento
Erogazione riscaldamento Termosifoni/Caloriferi
Camino
Lift/ascensore
Porta Blindata
Tende da sole esterne
Videocitofono