IMMOBILI
VILLA STORICA NEL COMUNE DI FILATTIERA FRAZIONE CAPRIO

VILLA STORICA NEL COMUNE DI FILATTIERA FRAZIONE CAPRIO

Descrizione

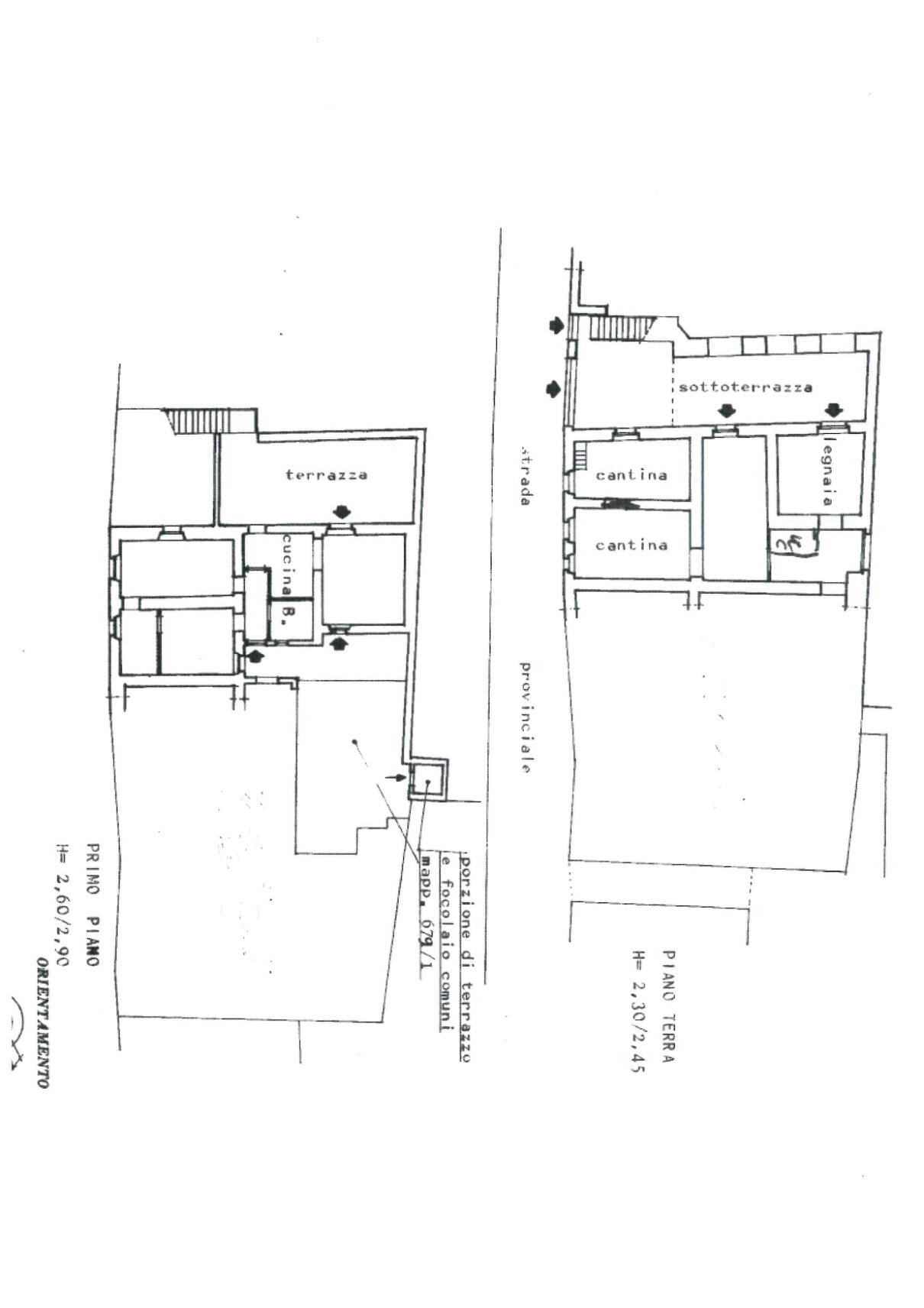
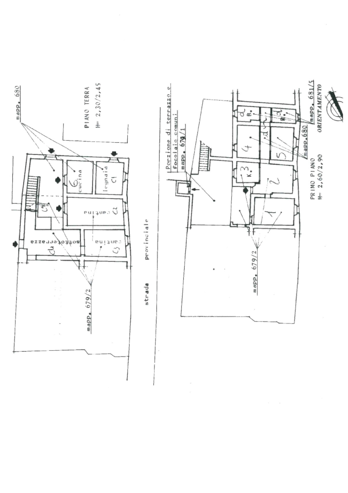
**Casa indipendente in Vendita CON AMPIO TERRENO - Villa Storica del 1689** Scopri il fascino di questa villa storica del 1689, situata in una posizione tranquilla, lontana dal caos della città metropolitana. Questa splendida proprietà in pietra si presenta in buone condizioni interne ed esterne, pronta per essere abitata. Con un ampio sviluppo al primo piano, la villa offre due appartamenti di 3 e 4 locali, ideali per famiglie numerose o per chi desidera unire gli spazi in un'unica grande abitazione. La villa vanta una cantina al piano terra con porticato esterno e logge, il tutto circondato da un vasto terreno di circa 10000 mq. Con quattro ingressi, di cui due pedonali e due carrai, la proprietà garantisce comodità e accessibilità. La posizione è strategica: a soli 25 km dalle splendide località marittime di Marinella di Sarzana e Lerici, e a 30 km dal litorale della Spezia e dalla Versilia. Inoltre, gli amanti della montagna possono raggiungere gli impianti sciistici della Valle di Zeri in circa 40 km. La villa è perfetta per chi cerca una fuga nella natura, con la possibilità di passeggiate nei dintorni e un facile accesso alla storica Via Francigena. Non perdere l'occasione di vivere in un luogo ricco di storia e bellezza. Consegna in tempi brevi! Arredamento compreso nel prezzo. Contattaci per maggiori informazioni e per prenotare una visita.

PREZZO: € 430.000
Richiedi Informazioni
  • Via Giuseppe Sirtori, 4, 20900 Monza
  • 0392 264 917
  • ragocasa@gmail.com
Provincia MS
Comune Filattiera
CAP 54023
Indirizzo via caprio 49
(Vai alla mappa📍)
Tipologia Appartamento
MQ 732 m2
Camere 7
Bagni 4
Classe energetica G
Giardino 10000 m²
Esposizione solare Nord, Sud, Ovest, Est
Anno costruzione 1689
Riscaldamento Autonomo
Erogazione Termosifoni/Caloriferi
Camino
Cancello Elettrico
Deposito attrezzi
Deposito biciclette
Deposito moto
Porta Blindata